上のお子様の『一人部屋がほしい』という一言がきっかけで始まったM様邸のリフォーム。マンションの管理会社が発行している古い冊子に掲載していた子ども部屋の事例を見て、『いつかこうしようと思っていたんです』と長谷工リフォームにお問い合わせ頂きました。
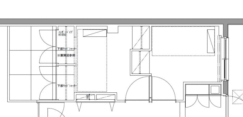
元の和室と隣のサービスルームの2室をどうやって子供部屋2つと畳コーナーにするか、何度もプランを練り直し、最終的にロフトベッドとオープン収納、ルーバーを使うことで、わずか3畳ちょっとのスペースを有効に使えるコンパクトな子供部屋が誕生しました。

コメント&データ Comments & data

施主コメント
リフォームの目的と要望

  1. 大きくなった子どもたちにそれぞれの部屋を作りたい
  2. 畳コーナーは残したい

「リフォーム前は散らかっていた子供部屋が今は何も言わなくてもきれいになっています。」

自分の空間をもつことでこんなに変わるんだと驚いています、とM様。子ども部屋はロフトベッドの下にデスクを配置したことでコンパクトながらも快適な空間になりました。子供たちはもちろん、ご両親にとっても居心地のいい住まいに仕上がりました。

施工会社コメント
プランのポイント、工夫した点

  1. 子ども部屋のプランは初めは造作ベッドで仕切るプランでしたが、コスト面や将来のことを考えて壁で仕切りロフトベッドを配置することにしました。通風と採光を確保するため、ルーバーを採用し、快適な空間となるよう工夫しました。
  2. 子ども部屋をコンパクトにまとめたことで畳コーナーも4.5帖確保することができました。床までの収納を設けると狭く感じるため吊押入にして視覚的な広がりを感じられるように。下部はルーバーにしたことで子どもが部屋にいるときでも様子が伝わるように配慮しました。